Town of Chapel Hill, NC
Home Menu
Find A Service
Services
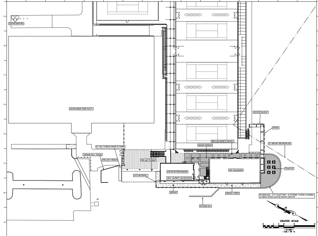
UNC- CH Chewning Tennis Center - Team Building
Project Address: 251 Friday Center Drive
PIN (s): 9798518134 (Orange County) and 9797785625 (Durham County)
Project Description: Proposed new team building for existing UNC Tennis Facility.
Project Status: Zoning Compliance, Permitting and Construction
Application Materials: Special Use Permit Modification
Town Hall (405 Martin Luther King Jr. Blvd, Chapel Hill, NC)
Event:
Date:
Location:
Town Council Meeting
June 18, 2025
