Town of Chapel Hill, NC
Home Menu
Find A Service
Services
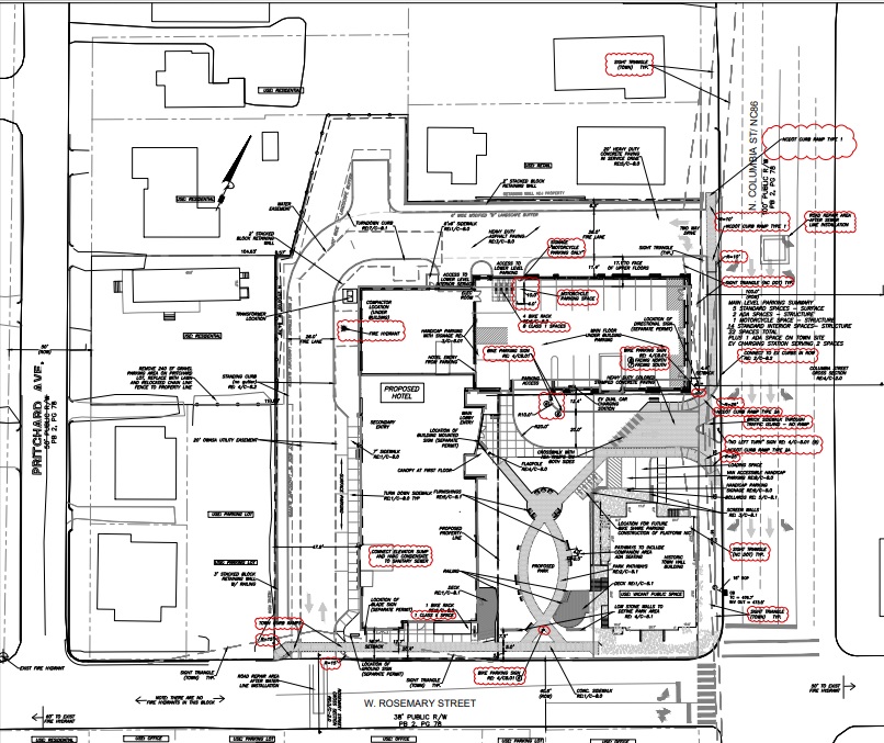
Rosemary-Columbia St Hotel - 124 W Rosemary
Final Plans Application (ZCP-23-25)
Applicant Name: Wendi Ramsden, Coulter Jewell Thames PA
Project Address: 108 and 114 W. Rosemary St.; 208 Pritchard Ave.; and 205 N. Columbia St.
Project Number: 20-076
Orange County PIN: #9788-27-9700, 9788-37-0535, 9788-37-0647, 9788-37-0721, 9788-37-0680, 9788-37-0549
Project Status: Zoning Compliance, Permitting and Construction
Description: Conditional zoning to redevelop seven contiguous parcels in order to develop a 140-room, 4-5 story hotel with approximately 85 parking spaces.
Final Plans
Final Plans Application Materials:
Round 1:
Round 2:
- ZCP Site Plan Set 4.21.2023
- Rosemary St. Hotel - Elevations 4.21.2023
- Rosemary Hotel ZCP Project Narrative 4.21.2023
Conditional Zoning (Project #20-076)
Application Materials:
Round 1:
- Application
- Project Narrative
- Statement of Justification
- Consistency with Comprehensive Plan
- Plan Set
Round 2:
Round 3
Review Schedule:
| Event: |
Date & Time: | Location: |
| Public Information Meeting (Register Here) |
October 15, 2020 |
Virtual Meeting |
|
ESAB |
May 20, 2021 |
Virtual Meeting |
| Community Design Commission |
May 25, 2021 at 6:30pm |
Virtual Meeting |
| Transportation & Connectivity Advisory Board |
May 25, 2021 at 7pm |
Virtual Meeting |
| Public Information Meeting (Register Here) |
June 8, 2021 from 5:15pm-6:15pm |
Virtual Meeting |
| Planning Commission |
June 15, 2021 at 6:30pm | |
| Town Council |
June 23, 2021 at 7pm |
|
| Town Council |
September 22, 2021 at 7pm (Continuation) |
|
| Town Council |
October 13, 2021 |
Virtual Meeting |
Concept Plan Application, August 2019 (Project #19-107)
Review Schedule:
| Event: |
Date | Location and Time |
| Concept Plan Application Submitted | 8-27-2019 | NA |
| Concept Plan - Community Design Commission | 9-24-2019 | 6:30 pm, Town Hall, Council Chambers |
| Concept Plan - Council Hearing | 11-13-2019 | 7:00 pm, Town Hall, Council Chambers |
